
Miniature Bearings Australia
SC030M-060-C-SK-CZ - Datasheet
Brighton Best
Category Information
Screws - Socket Cap - Zinc PlatedZinc Plated Socket Cap Screws. UNC - UNF - METRIC - Alloy Steel.
- An expanded range may be available on special order. Please enquire.
- Imperial Sizes to ANSI B18.3.
- Metric Sizes to DIN912.
Product Data
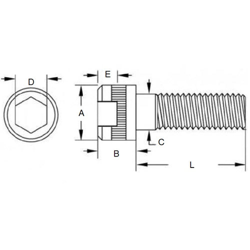
- Thread Size (C) : M3 (3x0.5mm)
- Thread Length (L)
60
mm
(Equiv. 2.362 in.) - Material Zinc Plated Steel
- Head Length (B Max.) 3.0 mm
- Head Diameter (A Max.) 5.5 mm
- Drive Depth (E) 1.30 mm
- Shank Diameter (C) 2.86 - 3.00 mm
- Hex Key (D) 2.50 mm
- Pitch 0.500 mm
- Threads Per Inch 50.8 TPI
- Min thread Length 18 mm
- Material Zinc Plated Steel
Product Compliance and Data
Additional Resources
- Screws & Nuts Catalogue
- Shoulder Screws Catalogue
- Socket Set (Grub) Screws Catalogue
- Thumb Screws & Thumb Nuts Catalogue
- Thread Size Chart - Combined Imperial & Metric
Cross References
- Brighton Best 876936


