
Miniature Bearings Australia
SC240M-200-C-SK-CZ - Datasheet
Brighton Best
Category Information
Screws - Socket Cap - Zinc PlatedZinc Plated Socket Cap Screws. UNC - UNF - METRIC - Alloy Steel.
- An expanded range may be available on special order. Please enquire.
- Imperial Sizes to ANSI B18.3.
- Metric Sizes to DIN912.
Product Data
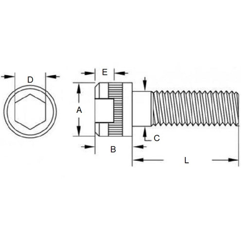
- Thread Size (C) : M24 (24x3mm)
- Thread Length (L)
200
mm
(Equiv. 7.874 in.) - Material Zinc Plated Steel
- Head Length (B Max.) 24.0 mm
- Head Diameter (A Max.) 36.4 mm
- Drive Depth (E) 12.00 mm
- Shank Diameter (C) 23.67 - 24.00 mm
- Hex Key (D) 19.00 mm
- Pitch 3.000 mm
- Threads Per Inch 8.46 TPI
- Min thread Length 60 mm
- Material Zinc Plated Steel
Product Compliance and Data
Additional Resources
- Screws & Nuts Catalogue
- Shoulder Screws Catalogue
- Socket Set (Grub) Screws Catalogue
- Thumb Screws & Thumb Nuts Catalogue
- Thread Size Chart - Combined Imperial & Metric
Cross References
- Brighton Best 876360


