
Miniature Bearings Australia
SHLD095-057-SKT-C - Datasheet
Brighton Best
Category Information
Screws - Shoulder - Socket Head - Carbon SteelCarbon Steel Socket Head Shoulder Screws. Hardened
- Also known as Pivot Pin, Fulcrum Screw, Stripper Bolt, Stepped Screw and Shoulder Socket Cap Screw
Product Data
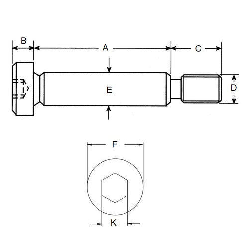
- Shoulder Diameter (E)
:
9.525
mm
- 0.010 / - 0.040
(Equiv. 0.375 in.) - Shoulder Length (A)
57.150
mm
(Equiv. 2.25 in.) - Thread (D) 5/16 UNC
- Max. Thread Length (C) 11.11 mm
- Head Height (B) 5.56 mm
- Head Diameter (F) 12.70 mm
- Allen Key Size 4.76 mm
- Material Carbon Steel - Hardened
Product Compliance and Data
Additional Resources
- Screws & Nuts Catalogue
- Shoulder Screws Catalogue
- Socket Set (Grub) Screws Catalogue
- Thumb Screws & Thumb Nuts Catalogue
- Thread Size Chart - Combined Imperial & Metric
Cross References
- Brighton Best 221076
- 91259A633
- BRB-221076P
- BRB221076P
- HK08052
- HK-08052


