
Miniature Bearings Australia
SHLD191-127-SKT-C - Datasheet
Brighton Best
Category Information
Screws - Shoulder - Socket Head - Carbon SteelCarbon Steel Socket Head Shoulder Screws. Hardened
- Also known as Pivot Pin, Fulcrum Screw, Stripper Bolt, Stepped Screw and Shoulder Socket Cap Screw
Product Data
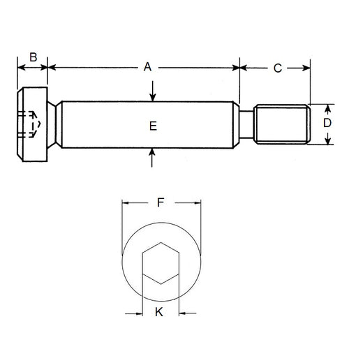
- Shoulder Diameter (E)
:
19.050
mm
- 0.010 / - 0.040
(Equiv. 0.75 in.) - Shoulder Length (A)
127.000
mm
(Equiv. 5 in.) - Thread (D) 5/8 UNC
- Allen Key Size 9.53 mm
- Material Carbon Steel - Hardened
Product Compliance and Data
Additional Resources
- Screws & Nuts Catalogue
- Shoulder Screws Catalogue
- Socket Set (Grub) Screws Catalogue
- Thumb Screws & Thumb Nuts Catalogue
- Thread Size Chart - Combined Imperial & Metric
Cross References
- Brighton Best 221256
- 91259A855
- BRB221256P
- BRB-221256P


