
Miniature Bearings Australia
SHLD160-045-SKT-C - Datasheet
Brighton Best
Category Information
Screws - Shoulder - Socket Head - Carbon SteelCarbon Steel Socket Head Shoulder Screws. Hardened
- Also known as Pivot Pin, Fulcrum Screw, Stripper Bolt, Stepped Screw and Shoulder Socket Cap Screw
Product Data
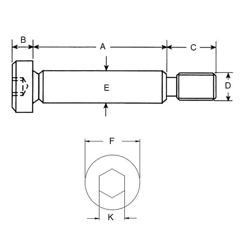
- Shoulder Diameter (E)
:
16.000
mm
- 0.010 / - 0.040
(Equiv. 0.63 in.) - Shoulder Length (A)
45.000
mm
(Equiv. 1.772 in.) - Thread (D) M12x1.75
- Max. Thread Length (C) 18.40 mm
- Head Height (B) 10.00 mm
- Head Diameter (F) 24.33 mm
- Allen Key Size 8.00 mm
- Material Carbon Steel - Hardened
Product Compliance and Data
Additional Resources
- Screws & Nuts Catalogue
- Shoulder Screws Catalogue
- Socket Set (Grub) Screws Catalogue
- Thumb Screws & Thumb Nuts Catalogue
- Thread Size Chart - Combined Imperial & Metric
Cross References
- Brighton Best 537252
- 92981A535


