
Miniature Bearings Australia
SHLD127-152-SKT-C - Datasheet
Brighton Best
Category Information
Screws - Shoulder - Socket Head - Carbon SteelCarbon Steel Socket Head Shoulder Screws. Hardened
- Also known as Pivot Pin, Fulcrum Screw, Stripper Bolt, Stepped Screw and Shoulder Socket Cap Screw
Product Data
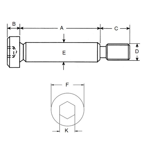
- Shoulder Diameter (E)
:
12.700
mm
- 0.010 / - 0.040
(Equiv. 0.5 in.) - Shoulder Length (A)
152.400
mm
(Equiv. 6 in.) - Thread (D) 3/8-16 UNC
- Max. Thread Length (C) 15.88 mm
- Head Height (B) 7.94 mm
- Head Diameter (F) 19.05 mm
- Allen Key Size 6.35 mm
- Material Carbon Steel - Hardened
Product Compliance and Data
Additional Resources
- Screws & Nuts Catalogue
- Shoulder Screws Catalogue
- Socket Set (Grub) Screws Catalogue
- Thumb Screws & Thumb Nuts Catalogue
- Thread Size Chart - Combined Imperial & Metric
Cross References
- Brighton Best 711114
- 91259A117


