
Miniature Bearings Australia
SHLD100-025-SKT-C - Datasheet
Brighton Best
Category Information
Screws - Shoulder - Socket Head - Carbon SteelCarbon Steel Socket Head Shoulder Screws. Hardened
- Also known as Pivot Pin, Fulcrum Screw, Stripper Bolt, Stepped Screw and Shoulder Socket Cap Screw
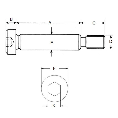
Product Data
- Shoulder Diameter (E)
:
10.000
mm
- 0.010 / - 0.040
(Equiv. 0.394 in.) - Shoulder Length (A)
25.000
mm
(Equiv. 0.984 in.) - Thread (D) M8x1.25
- Max. Thread Length (C) 13.00 mm
- Head Height (B) 7.00 mm
- Head Diameter (F) 16.00 mm
- Allen Key Size 5.00 mm
- Material Carbon Steel - Hardened
Product Compliance and Data
Additional Resources
- Screws & Nuts Catalogue
- Shoulder Screws Catalogue
- Socket Set (Grub) Screws Catalogue
- Thumb Screws & Thumb Nuts Catalogue
- Thread Size Chart - Combined Imperial & Metric
Cross References
- Brighton Best 537150
- 92981A304
- HSS825
- HSS8-25


