
Miniature Bearings Australia
SHLD100-020-SKT-S3 - Datasheet
MBA
Category Information
Screws - Shoulder - Socket Head - 303 Stainless303 Stainless Socket Head Shoulder Screws. 303 Stainless Steel
- Also known as Pivot Pin, Fulcrum Screw, Stripper Bolt, Stepped Screw and Shoulder Socket Cap Screw
Product Data
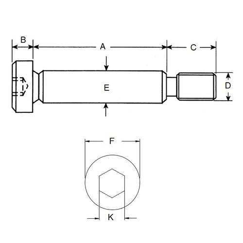
- Shoulder Diameter (E)
:
10.000
mm
- 0.008 / - 0.038
(Equiv. 0.394 in.) - Shoulder Length (A)
20.000
mm
+ 0.013 / + 0.063
(Equiv. 0.787 in.) - Thread (D) M8x1.25
- Max. Thread Length (C) 12.00 mm
- Head Height (B) 7.00 mm
- Head Diameter (F) 14.00 mm
- Allen Key Size 5.00 mm
- Material Stainless Steel 303/304 (Similar to A2, 18-8) HRB80
Product Compliance and Data
Additional Resources
- Screws & Nuts Catalogue
- Shoulder Screws Catalogue
- Socket Set (Grub) Screws Catalogue
- Thumb Screws & Thumb Nuts Catalogue
- Thread Size Chart - Combined Imperial & Metric
Cross References
- 90265A163
- SHS8-20
- SHS820


